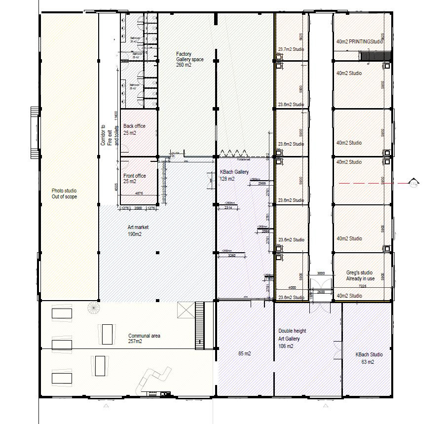
The Factory Art Space
Year: 2019
Location: Phnom Penh
Client: The Factory
Company: Atelier Cole
Project Architect at Studio Cole. My role was to follow design directions from David Cole, as a designer and as a drafter following the whole project from concept design through site supervision during the build.
This art gallery will be the biggest art gallery in Phnom Penh. Inhabited by Kbach who support new and young Cambodian artists. In one of the existing buildings on the factory site, we designed a plan for a re-use to adapt this warehouse into a gallery, workshop and studio space. We had a small budget and with that budget we established to have all the necessary spaces with a contemporary gallery appearance. That was open to other creators to add their signature in the form of street art. We were asked to design the front desk that turned into its own piece of art. Through parametric design we created a desk made out of different layers in an organic shape. The purpose of the front desk was to welcome guests, give information and serve coffee and drinks.




Finished photos




Artist impressions

Finished photos

