Beltroad BRCM offices
Year: 2019
Location: Phnom Penh
Client: Beltroad
Company: Atelier Cole
My role in this project was the main designer under supervision of David Cole. I lead the team inside the office regarding drafting and 3d modelling, while I was often working on grasshopper scripts, working out our design proposals and presentations.
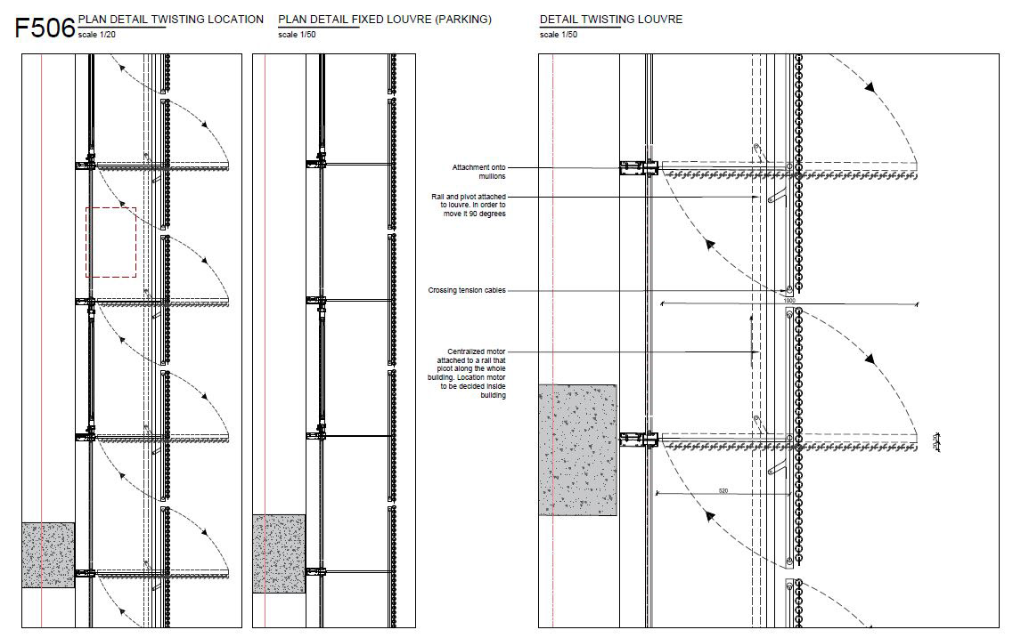
We were asked to design the facade for a new office building of Beltroad Capital. A Chinese investment company with an office in Phnom Penh. The client preferred to have a shiny building like finanical buildings are. From our end as the architect, knowing how hot the weather is especially with a west facading facade, we proposed a double skin. Still having the smoothness of a financial building, with an extra layer of comfort and environmental benefits. Therefore we
designed a facade that would open and close according to the sun direction. A so called kinetic facade.
designed a facade that would open and close according to the sun direction. A so called kinetic facade.
< Diagrams of our approach towards the facade.
After many different design iterations, was this our final render of a twisting facade responding to the sun pattern.
Diagram facade
Renderview of facade with and without the extra louvres
Detail section of the twisting louvre
In collaboration with: